€ 285.000 k.k.

Koninginnelaan 59 Groningen


Plan een bezichtiging

T 050-3113110
E info@slimmakelaardij.nl

Plan bezichtiging
Woningtype
Appartement
Woonoppervlakte
64 m2
Aantal kamers
2 kamers / 1 slaapkamer

Omschrijving

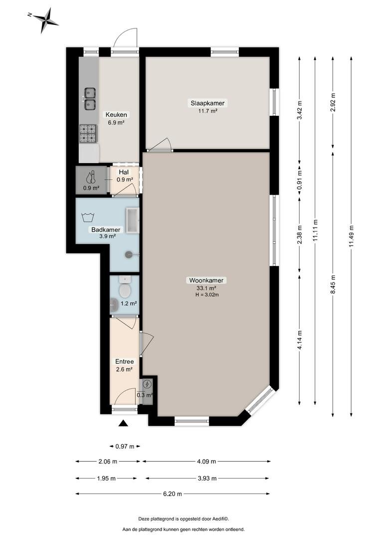
Wonen met koninklijke allure in de geliefde Oranjewijk! Zodra je de Koninginnelaan inloopt, voel je direct de sfeer, charme en gezelligheid van deze populaire wijk. Tussen de groene pleintjes en knusse straatjes ligt deze sfeervolle en goed onderhouden benedenwoning. Binnen vijf minuten wandel je naar het Noorderplantsoen of het bruisende stadscentrum. De woning beschikt over een fijne tuin én een actieve VvE. Kortom: de ideale plek voor wie op zoek is naar een gezellig huis in een rustige, karaktervolle omgeving. Kom je eens kijken?Indeling: Via de entree/hal bereik je het toilet met fonteintje. De lichte woonkamer van ca. 33 m² heeft een hoog plafond en grote ramen, waardoor er veel daglicht binnenvalt en je een leuke blik hebt op de sfeervolle straat. Achter de woonkamer bevindt zich de slaapkamer van ca. 11 m². Via een halletje kom je in de badkamer van ca. 4 m² met een ruime inloopdouche, wastafel en aansluiting voor de wasmachine. De keuken (ca. 7 m²) is voorzien van een keukenblok met een Smeg gasfornuis met oven, afzuigkap en koel-vriescombinatie. Vanuit de keuken stap je zo de gezellige achtertuin in met handige zij-ingang.De tuin ligt op het noordoosten, perfect om in de ochtend en middag van de zon te genieten. Achterin de tuin staat een berging van ca. 6 m², ideaal voor tuingereedschap en fietsen.- Volledig voorzien van kunststof kozijnen - Toplocatie in de geliefde Oranjewijk - Actieve en gezonde VvE - Ruime stadstuin
omschrijving

Kenmerken

TypeAppartement
HoofdfunctieWoonruimte
Bouwvormbestaande bouw
Woonoppervlakte64 m²
EnergielabelG
Bouwperiode1920
Refresh to make it work.

Helaas..
Dit object is niet meer beschikbaar

Voor meer informatie kunt u contact met ons opnemen.
Bel ons op 050-3113110 voor direct contact.

Contact opnemen
Contact

T 050-3113110
E info@slimmakelaardij.nl

BTW nr. NL854138201B01
KvK nr. 60963077

Volg ons
Langskomen?

Zonnelaan 44, Groningen

Openingstijden:
maandag t/m vrijdag 9.00 - 17.00 uur

Partners

NVM Aankoopmakelaar Groningen