€ 295.000 k.k.
Topaasstraat 10 Groningen
Plan een bezichtiging
T 050-3113110
E info@slimmakelaardij.nl
Woningtype
Woonhuis
Woonoppervlakte
124 m2
Aantal kamers
5 kamers / 4 slaapkamers
Omschrijving
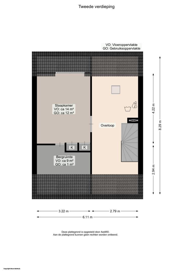
Aan de gelegen aan een sfeervol hofje in de wijk Vinkhuizen vind je deze tussenwoning met ontzettend veel potentie! Een woonoppervlakte van 125m², 4 slaapkamers en een fijne tuin van ca. 57m² gelegen op het zuiden. Dat alles op een ideale locatie, op loopafstand van het winkelcentrum Vinkhuizen en met ook het bruisende stadscentrum binnen loop- en fietsafstand.De wijk kenmerkt zich niet alleen door het ruime winkelaanbod in het winkelcentrum, maar ook de vele scholen die aanwezig zijn, sportfaciliteiten en het recreatiegebied "Roege Bos". Je kunt hier naar hartenlust wandelen, hardlopen, fietsen etc. Door de uitvalswegen ben je ook binnen korte tijd de stad uit, handig als je buiten de stad werkzaam bent.Indeling: entree/hal met eenvoudig toilet en de trapopgang naar de verdieping. De kleurrijke woonkamer van ca. 32m² is heerlijk licht en ruimtelijk dankzij de grote raampartijen voor- en achter. De ruimte kan geheel naar eigen wens worden afgewerkt, waarbij het ook een idee is om de naastgelegen keuken open te maken. Deze is nu gesloten en voorzien van een eenvoudig keukenblok, maar hier is uiteraard veel potentie. Er is een deur naar de achtertuin en een deur terug naar de hal.Eerste verdieping: overloop, 3 slaapkamers van ca. 9m², 12m² en 16m² waarbij de laatste twee voorzien zijn van vaste kasten. Verder is er een eenvoudige badkamer voorzien van een douche, toilet en wastafel. Hier kun je je fantasie de vrije loop laten en keuzes maken wat betreft inrichting.Tweede verdieping: overloop met ruimte voor de CV. Hier is nog ruimte om de wasmachine en droger bijvoorbeeld te plaatsen. De vierde slaapkamer in het huis is extra licht dankzij het dakraam en ca. 11m² groot met vaste kastruimte en bergruimte achter de schotten.De zonnige tuin bereiken we via de achterdeur in de keuken. Deze onderhoudsarme tuin is in goede staat, net als de voortuin. In de achtertuin gelegen op het zuiden kun je heerlijk genieten van de middag en avondzon. De tuin is ook achterom bereikbaar. Zo zet je gemakkelijk je fiets in de stenen berging van ca. 6m².* Ruime tussenwoning met 4 slaapkamers
* Veel potentie en de unieke kans om de woning geheel naar eigen wens af te maken
* De perfecte locatie, met vrij uitzicht over het water in de wijk
* Energielabel C
* Projectnotaris van toepassing
* Niet zelf bewoond clausule van toepassing
Kenmerken
| Type | Woonhuis |
|---|---|
| Hoofdfunctie | Woonruimte |
| Bouwvorm | bestaande bouw |
| Woonoppervlakte | 124 m² |
| Energielabel | C |
| Bouwperiode | 1970 |
Refresh to make it work.
Helaas..
Dit object is niet meer beschikbaar
Voor meer informatie kunt u contact met ons opnemen.
Bel
ons op 050-3113110 voor direct contact.














































