€ 425.000 k.k.
Turftorenstraat 43 Groningen
Plan een bezichtiging
T 050-3113110
E info@slimmakelaardij.nl
Woningtype
Appartement
Woonoppervlakte
105 m2
Aantal kamers
4 kamers / 3 slaapkamers
Omschrijving
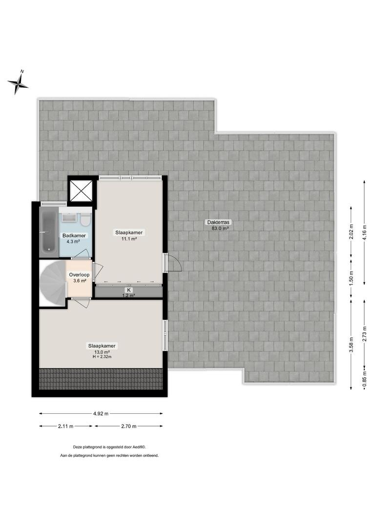
In het stadshart van Groningen, om de hoek van de Hoge der A, is het heerlijk wonen op de 3e en 4e verdieping, mét privé dakterras van 83 m². Een fantastische plek met uitzicht, waar de echte stadsliefhebber alleen maar van kan dromen, met de bruisende stad letterlijk aan je voeten. Met maar liefst 105 m² woonoppervlak heb je binnen volop leefruimte, en dankzij de verdeling over twee woonlagen voelt het aan als een echt (t)huis. Zo zijn er drie slaapkamers aanwezig en heb je, naast dat geweldige dakterras, ook nog een balkon grenzend aan de living. Op de begane grond is niet alleen een eigen fietsenberging te vinden, maar ook een gezellige, gezamenlijke binnentuin waar je het hele jaar door van kunt meegenieten.Indeling derde verdieping:Entree/hal. Aan de rechterzijde lopen we de woonkeuken in van ca. 13,3 m², met een ruime keuken in hoekopstelling, voorzien van oven, inductiekookplaat en een losstaande Liebherr koel-/vriescombinatie. De wasruimte/berging van ca. 3 m² is vanuit hier bereikbaar en biedt plaats aan het witgoed, maar ook aan de cv-ketel (Intergas, 2024). De werkkamer van ca. 10 m² grenst eveneens aan de hal en is een fijne plek om je even terug te trekken. Deze kan ook prima dienstdoen als slaapkamer.De berging van bijna 2 m² in de hal zit naast het moderne toilet met fonteintje. Zo komen we aan bij de royale living van ca. 32 m², met volop raampartijen en de markante spiltrap als eyecatcher. Hier ervaar je de stadse stilte, terwijl je uitkijkt over de gezellige Turftorenstraat. Via de deur is er toegang tot het balkon, waar je beschut kunt zitten met zicht op de bomen.Vierde verdieping:Via de stalen spiltrap komen we op de vierde verdieping met overloop, een slaapkamer van ca. 13 m² met schuine zijde voor een knus gevoel, en een gemoderniseerde badkamer van 4,3 m² met ligbad/douche, wastafel en tweede toilet (sani-broyeur). De slaapkamer van 11 m² heeft een vaste kast met schuifdeuren en – als kers op de taart – toegang tot het dakterras van ca. 83 m²! Wij durven dan ook gerust van een daktuin te spreken, omdat "dakterras" de lading niet dekt. Hier heb je diverse zitjes en kun je genieten van de mooiste uitzichten over de stad. Wat een heerlijke plek om bij mooi weer te vertoeven – en dat helemaal privé.Alsof dat alles nog niet voldoende is, is er ook nog de gezamenlijke en groenrijke binnentuin op de begane grond, waar alle bewoners van het complex gebruik van mogen maken. Daarnaast is er een eigen fietsenberging met voldoende bergruimte van ca. 7 m².* toplocatie, om de hoek van Hoge der A
* alle voorzieningen, winkels, restaurants, cafeetjes etc. op loopafstand
* ervaar de drukte en de stilte in de stad tegelijk
* energielabel B, goed geïsoleerd
* gezonde en actieve VvE met een bijdrage van € 228,70
Kenmerken
| Type | Appartement |
|---|---|
| Hoofdfunctie | Woonruimte |
| Bouwvorm | bestaande bouw |
| Woonoppervlakte | 105 m² |
| Energielabel | B |
| Bouwperiode | 1976 |
Refresh to make it work.
Jouw droomhuis?
Plan een bezichtiging met de makelaar van Slim.
Of als je nog een vraag hebt: stel deze gerust.








































































