€ 1.550
Van Houtenlaan 180 a Groningen
Plan een bezichtiging
T 050-3113110
E info@slimmakelaardij.nl
Woningtype
Appartement
Woonoppervlakte
95 m2
Aantal kamers
3 kamers / 2 slaapkamers
Omschrijving
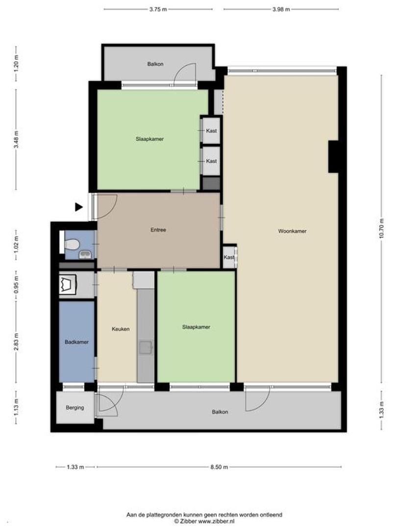
TE HUUR: In het geliefde Helpman, aan de zuidkant van Groningen, ligt dit royale appartement van maar liefst 95m² met twee slaapkamers en volop buitenruimte. Het appartement is de afgelopen jaren op stijlvolle wijze gemoderniseerd en van alle gemakken voorzien. Aan de achterzijde over de gehele breedte is er een balkon op het oosten en voor, toegankelijk vanuit de ouderslaapkamer, een balkon op het westen. Het geheel is heerlijk licht en tot in de puntjes verzorgd. De ligging is ideaal vlakbij het centrum van Helpman en met een supermarkt aan De Savornin Lohmanlaan op loopafstand. Hier ontbreekt het aan niets.Indeling: entree/royale hal met toegang tot alle ruimtes van het appartement. Het centrale punt. Aan de rechterzijde vinden we een modern hangtoilet met wastafel, moderne en compleet ingerichte keuken van ca. 7,7m² voorzien van SIEMENS inbouwapparatuur zoals vaatwasser, koel/-vriescombinatie, kookplaat, afzuigkap en volop kastruimte. Hier is tevens een vaste kast waarin de wasmachine, droger en aanwezige stofzuiger zijn te vinden (allen uit 2021). Ook is de badkamer vanuit de keuken toegankelijk met daarin een ruime douchecabine, badmeubel met spiegel en kastruimte en daglichtinval via het raampje. Vanuit de keuken heb je tevens toegang het ruime balkon op het oosten van waaruit je heerlijk ver over het groen en de achtergelegen huizen kunt kijken. Hier is een vaste kast met opbergruimte aanwezig. Er zijn twee slaapkamers aanwezig. De kamer aan de achterzijde is ca 10,5m² groot en ingericht als werkkamer vanwege het rustige uitzicht en de ligging op het oosten. De ouderslaapkamer van ca 12,7m² ligt aan de voorzijde en heeft volop vaste kasten en toegang tot het balkon op het westen. De riante woonkamer is echt de verrassing van dit appartement, met maar liefst 41m² heb je hier volop leefruimte en bovendien volop licht dankzijde de ligging van oost naar west. De hoogwaardige marmoleum vloer, de twee vaste kasten en de schouw maken het sfeervolle plaatje tot een geheel. Het staat buiten kijf dat dit een fijne plek is om te wonen.Het appartement is volledig voorzien van dubbele beglazing en warm water is beschikbaar via de elektrische boiler. Verwarming middels de blokverwarming waarvan de kosten inbegrepen zijn in de service kosten.
Beneden is een ruime berging van 14m² voor fietsen en opbergruimte.Huurprijs € 1550,- / maand gestoffeerd en gemeubileerd
excl g/w/e/servicekosten
Beschikbaar: op korte termijn
Borgsom: eenmalig € 3000,-- Minimum huurtermijn van 1 jaar, daarna (met inachtneming van 1 maand opzegtermijn) maandelijks op te zeggen;
- Er mag geen bedrijf worden gevestigd.Levering zaken en diensten: De levering van gas, water, elektriciteit, onderhoudsabonnementen van installaties, meubilering wordt verzorgd door verhuurder, waarvoor huurder een voorschot servicekosten zal voldoen.
Servicekosten: € 380,- per maand
Huurderscheck: Inkomens-/woontoets van toepassing
Kenmerken
| Type | Appartement |
|---|---|
| Hoofdfunctie | Woonruimte |
| Bouwvorm | bestaande bouw |
| Woonoppervlakte | 95 m² |
| Energielabel | B |
| Bouwperiode | 1958 |
Refresh to make it work.
Jouw droomhuis?
Plan een bezichtiging met de makelaar van Slim.
Of als je nog een vraag hebt: stel deze gerust.

































