€ 400.000 k.k.
Bergstraat 21 Groningen
Plan een bezichtiging
T 050-3113110
E info@slimmakelaardij.nl
Woningtype
Woonhuis
Woonoppervlakte
77 m2
Aantal kamers
3 kamers / 2 slaapkamers
Omschrijving
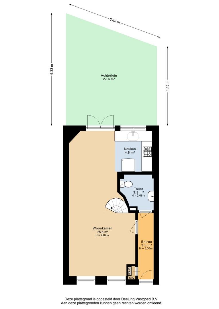
Niet alleen de locatie vlak bij het Noorderplantsoen maakt deze woning uit 1883 zo ideaal. Ook van binnen is het huis de afgelopen jaren volledig gemoderniseerd, met gevoel voor smaak en stijl. De ruimtes zijn heerlijk open en licht en versterken het karakter van de woning. Een mooie combinatie van sfeer, authenticiteit en modern gemak, wat onder andere blijkt uit het energielabel A.Indeling:
Entree/hal met aan het einde een ruim toilet met wastafel, waar ook plek is voor de wasmachine en droger. Via een fraaie toegangsdeur met glas-in-loodraam komen we in de woonkamer van ca. 26 m², met een hoog plafond voorzien van inbouwspots. Op de vloer ligt een houtlook laminaatvloer en de spiltrap naar boven vormt een mooi element in deze living.De open doorgang naar de keuken biedt een prettige plek voor de eettafel, waardoor er optimaal contact is met de keukenruimte. Hier is in 2023 een nieuwe hoekkeuken geplaatst, voorzien van een oven, 4-pits gaskookplaat met afzuigkap, vaatwasser en een losstaande koel-/vriescombinatie. De achterwand is keurig afgewerkt met houtlooktegels, wat een warme sfeer uitstraalt. Dankzij de vele ramen is er direct zicht op de achtertuin en via de openslaande deuren is deze gemakkelijk bereikbaar. Zo laat je binnen en buiten in de mooie maanden naadloos in elkaar overlopen.Verdieping:
Ruime overloop/slaapruimte van ca. 16,5 m². Deze open ruimte is eenvoudig af te sluiten, waardoor een fijne tweede slaapkamer ontstaat, mede dankzij de dakkapel. Er is toegang tot een berging waarin de cv-ketel en omvormer zijn geplaatst; hier zou eventueel ook de wasmachine kunnen staan.De badkamer is in 2021 volledig vernieuwd en voorzien van een ruime douchehoek met glazen schuifdeur, een royaal wastafelmeubel met kast en spiegel, en een tweede toilet. De andere slaapkamer is ca. 15 m² en dankzij de opbouw volledig voorzien van rechte wanden. Hierdoor wordt de ruimte optimaal benut en is er veel lichtinval door de grote raampartijen.De achtertuin is recent volledig opnieuw betegeld, wat het geheel onderhoudsvriendelijk maakt. De tuin ligt op de ochtendzon en biedt een heerlijke, privacyvolle plek om te vertoeven.* Volledig vernieuwd, strak afgewerkt en gemoderniseerd
* Verwarming middels elektrische verwarming
* 8 zonnepanelen (2023) met omvormer
* Cv-ketel uit 2023, energielabel A
* Vaste notaris
Kenmerken
| Type | Woonhuis |
|---|---|
| Hoofdfunctie | Woonruimte |
| Bouwvorm | bestaande bouw |
| Woonoppervlakte | 77 m² |
| Energielabel | A |
| Bouwperiode | 1883 |
Refresh to make it work.
Jouw droomhuis?
Plan een bezichtiging met de makelaar van Slim.
Of als je nog een vraag hebt: stel deze gerust.





































