€ 285.000 k.k.
Brederostraat 24 Groningen
Plan een bezichtiging
T 050-3113110
E info@slimmakelaardij.nl
Woningtype
Woonhuis
Woonoppervlakte
93 m2
Aantal kamers
4 kamers / 3 slaapkamers
Omschrijving
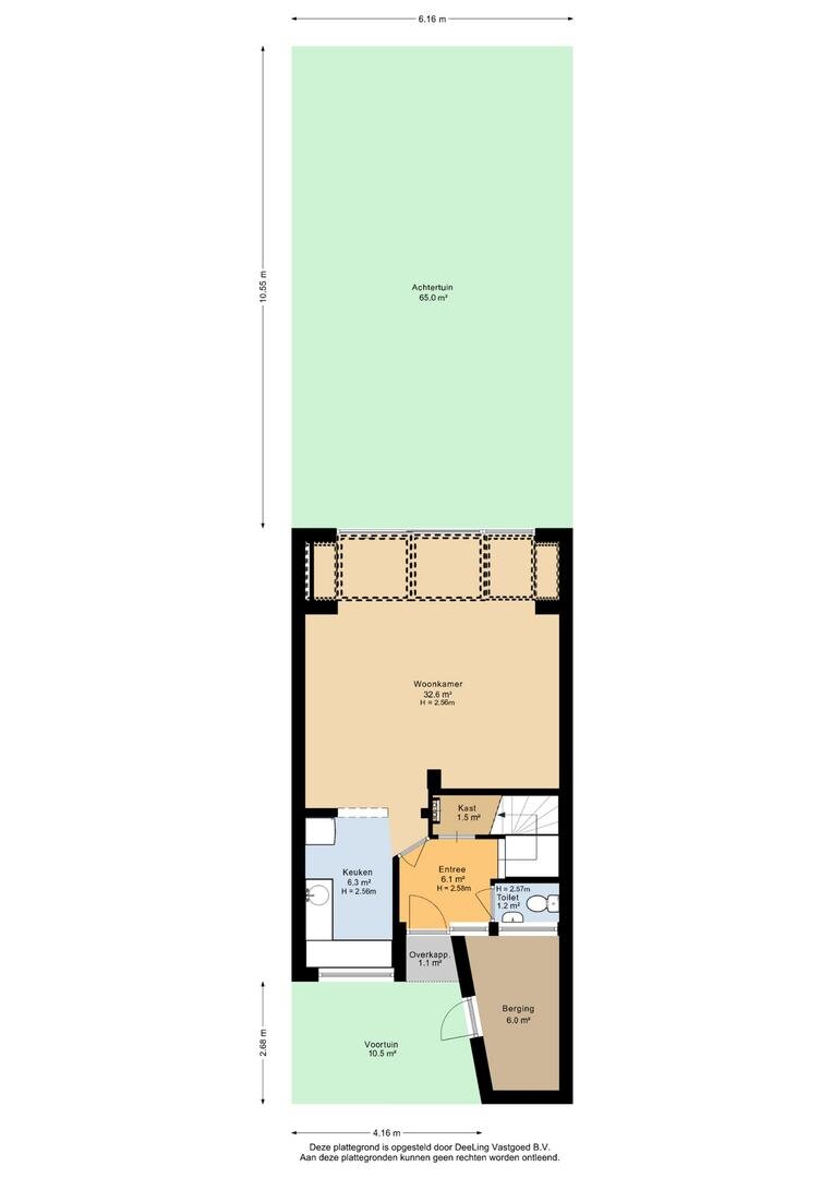
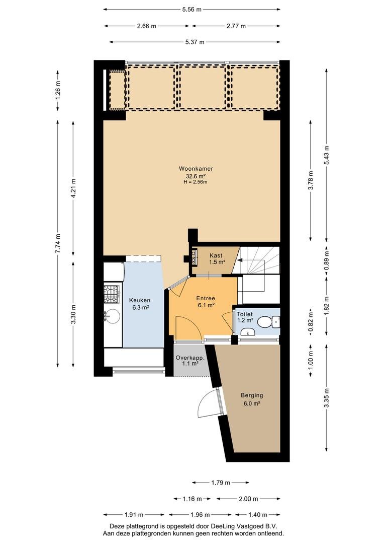
Op een ideale plek in de wijk De Weijert ligt dit gezinshuis met volop mogelijkheden tot uitbreiding van de woonoppervlakte en het aanpassen naar eigen wens. In 2004 is het huis uitgebouwd, waardoor een royale en lichte woonkamer is ontstaan van ca. 33 m² met zicht op de tuin. Een goede basis met volop ruimte, een praktische indeling met 3 slaapkamers en een fijne voor- en achtertuin.Deze groenrijke omgeving heeft veel te bieden, met diverse scholen op loopafstand. Net als de winkels aan de Van Lenneplaan; ook het complete winkelaanbod van Helpman is binnen handbereik.Indeling:
Via de eigen onderhoudsvriendelijke voortuin kom je bij de overdekte entree/hal, toilet, ruime kelder-/bergkast en toegang tot de lichte en royale woonkamer van ca. 33 m² met open keuken van ca. 6 m². Zo ontstaat een totale living van ca. 39 m² met volop mogelijkheden om deze naar eigen wens in te richten.De eenvoudige keuken biedt volop berg- en werkruimte en een mooie plek met zicht richting de voortuin. Laat je inspireren om hier een uitgebreide keuken, geheel naar eigen wens, te realiseren. De woonkamer is voorzien van een laminaatvloer en geniet van een heerlijke lichtinval. Deze lichtinval in de gehele ruimte is te danken aan de uitbouw uit 2004 met grote raampartijen. Vanuit hier is er toegang tot de achtertuin. Deze ligt op het zuiden en biedt een fijne plek met een hoge, groene erfafscheiding, zodat je kunt genieten van de zon met volop privacy.Eerste verdieping:
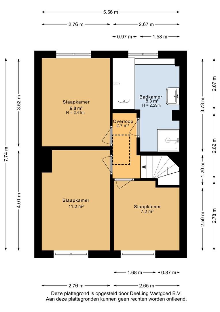
Overloop met toegang tot 3 slaapkamers van ca. 7 m² (voorzijde), 11 m² (voorzijde) en bijna 10 m² (achterzijde). De badkamer is ruim (ca. 8 m²) en beschikt over een ligbad, separate douchehoek met glaswand, wastafel en designradiator.Tweede verdieping:
Via een vlizotrap te bereiken zolderruimte met plaats voor de cv-ketel. Hier zijn mogelijkheden om een 4e slaapkamer van ca. 11 m² of groter te realiseren, bijvoorbeeld door het plaatsen van een dakkapel in combinatie met een vaste trap.De aangebouwde stenen berging is vanuit de voortuin bereikbaar en ideaal voor de fietsen.* ideale locatie aan de zuidzijde van Groningen
* vlakbij natuur, recreatie en diverse winkel- en eetgelegenheden
* volledig naar eigen wens en smaak aan te passen
* tegenover (straatzijde) worden volledig nieuwe woningen gerealiseerd door De Huismeesters
* verkoop via projectnotaris
* niet zelf bewoond clausule en ouderdomsclausule van toepassing
Kenmerken
| Type | Woonhuis |
|---|---|
| Hoofdfunctie | Woonruimte |
| Bouwvorm | bestaande bouw |
| Woonoppervlakte | 93 m² |
| Energielabel | D |
| Bouwperiode | 1961 |
Refresh to make it work.
Helaas..
Dit object is niet meer beschikbaar
Voor meer informatie kunt u contact met ons opnemen.
Bel
ons op 050-3113110 voor direct contact.














































