€ 325.000 k.k.
Eerste Spoorstraat 19 Groningen
Plan een bezichtiging
T 050-3113110
E info@slimmakelaardij.nl
Woningtype
Woonhuis
Woonoppervlakte
70 m2
Aantal kamers
5 kamers / 3 slaapkamers
Omschrijving
Heerlijk karakteristiek wonen in een huis uit 1904 nabij het bruisende centrum van Groningen, vlak bij het altijd gezellige Noorderplantsoen, in een mooie groene straat met weinig verkeer. De buurt kenmerkt zich als levendig, waar jong en oud gemoedelijk samenleven. Bovendien is de ligging erg ideaal. Het bruisende stadscentrum ligt op vijf minuten fietsafstand en ook het Noorderplantsoen, de supermarkt en de ringweg van Groningen zijn goed te bereiken.
kDeze sfeervolle en lichte woning heeft extra hoge plafonds, maar liefst drie slaapkamers, zeven zonnepanelen en een zonnige stadstuin. Wanneer mogen we je verwelkomen voor een bezichtiging van deze parel in ons aanbod?Indeling:
Begane grond
Entree met meterkast en separaat toilet, met toegang tot de ruime leefkeuken. De halfopen keuken van ca. 20,5 m² is voorzien van een moderne en smaakvolle keukenopstelling. De keuken beschikt over een 4-pits inductiekookplaat, afzuigkap, vaatwasser, koel-vriescombinatie en wasmachineaansluiting. De lichte woonkamer van 15 m² heeft een fijne, authentieke sfeer, mede dankzij de houten vloeren op de begane grond. Aan de achterzijde bevindt zich de moderne badkamer, voorzien van een inloopdouche, wastafel en de cv-opstelling.Eerste verdieping
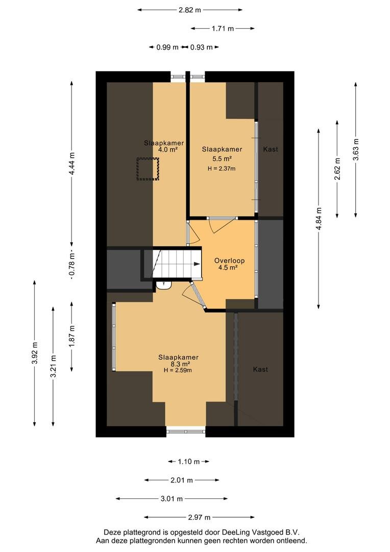
Op deze verdieping bevinden zich drie slaapkamers. De slaapkamer aan de voorzijde is 8 m² en voorzien van een dakkapel, waardoor de kamer licht en ruim aanvoelt. Aan de achterzijde bevinden zich nog een kamer van 5,5 m², eveneens met dakkapel, en een slaapkamer van 4 m², die ook goed te gebruiken is als werkkamer. Daarnaast is het mogelijk om van de twee kleinere kamers één grote slaapkamer te maken.In de knusse stadstuin bevindt zich nog een praktische berging.* Charmante en knusse schipperswoning met karakteristieke elementen
* Voorzien van 7 zonnepanelen, HR++ glas en bodemisolatie
* Moderne keuken en badkamer
* Sfeervol wonen op top locatie
Kenmerken
| Type | Woonhuis |
|---|---|
| Hoofdfunctie | Woonruimte |
| Bouwvorm | bestaande bouw |
| Woonoppervlakte | 70 m² |
| Energielabel | D |
| Bouwperiode | 1904 |
Refresh to make it work.
Helaas..
Dit object is niet meer beschikbaar
Voor meer informatie kunt u contact met ons opnemen.
Bel
ons op 050-3113110 voor direct contact.








































