€ 595.000 k.k.
James Wattstraat 7 Groningen
Plan een bezichtiging
T 050-3113110
E info@slimmakelaardij.nl
Woningtype
Appartement
Woonoppervlakte
176 m2
Aantal kamers
5 kamers / 4 slaapkamers
Omschrijving
Stadse rust in deze royale maisonnette met maar liefst 176 m² woonoppervlakte, met het stadspark letterlijk om de hoek. De ideale combinatie van het bruisende stadsleven en een strak vormgegeven, duurzame woning. Gelegen op een uitstekende locatie met volop speel- en groenvoorzieningen.
Deze maisonnette uit 2015 beschikt over twee royale woonlagen, veel lichtinval, vier slaapkamers, een fijne stadstuin én een parkeerplaats in de ondergelegen garage. Kortom: het ontbreekt aan niets. Dicht bij het centrum en het Centraal Station woon je hier comfortabel, met alle voorzieningen binnen handbereik.Indeling
Al bij binnenkomst voel je de ruimte in de hal. Hier bevinden zich de trapopgang naar boven, het toilet, een vaste bergkast en de toegang tot de royale woonkamer van circa 39 m². Dankzij de grote raampartijen is er volop lichtinval. De hoogwaardige marmoleumvloer onderstreept het kwaliteitsniveau waarvoor is gekozen bij de bouw in 2015.De open keuken van SieMatic is circa 17 m² groot en strak uitgevoerd in een hoekopstelling met een uitgebreide keukeninrichting. Er is gekozen voor een dun composiet werkblad, een combi-oven, een inductiekookplaat met SMEG afzuigkap en een koel-/vriescombinatie. Dankzij de hoge kastenwand aan de andere zijde is er veel werk- en bergruimte.Via de openslaande deuren is er een fijne verbinding met de tuin. Hier beschik je over een eigen terras van circa 24 m² op het zuiden, waar je van ’s ochtends tot ’s avonds van de zon kunt genieten, maar ook van het gezamenlijke groen van de binnentuin. Dit groen valt onder het onderhoud van de VvE.Daarnaast is er op de begane grond een bijkeuken met ruimte voor de wasopstelling, extra bergruimte en eveneens toegang tot de achtergelegen buitenruimte.Verdieping
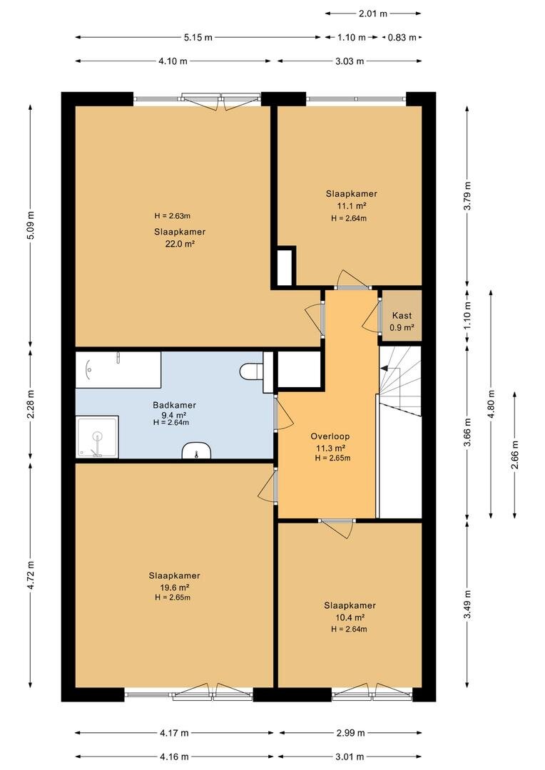
Overloop met vaste kast en maar liefst vier slaapkamers van circa 11 m², 22 m², 19,6 m² en 10,4 m². De slaapkamer aan de voorzijde heeft drie grote kiep-/kantelramen (met deuren) voor extra veel lichtinval en goede ventilatie. De overige slaapkamers zijn eveneens voorzien van kiep-/kantelramen.
De badkamer is circa 9,4 m² groot en beschikt over een open doucheruimte, een separaat ligbad, een wastafel en een tweede toilet.In de ondergelegen parkeergarage bevindt zich een eigen parkeerplaats, zodat de auto veilig, droog en warm staat. Dat scheelt weer ruiten krabben.De VvE is actief, professioneel en gezond. De maandelijkse bijdrage bedraagt circa € 198,30 en is inclusief buitenonderhoud en parkeren* energielabel A, duurzaam, stadsverwarming
* volledig v.v. vloerverwarming
* WKO-unit om ook te koelen
Kenmerken
| Type | Appartement |
|---|---|
| Hoofdfunctie | Woonruimte |
| Bouwvorm | bestaande bouw |
| Woonoppervlakte | 176 m² |
| Energielabel | A |
| Bouwperiode | 2015 |
Refresh to make it work.
Helaas..
Dit object is niet meer beschikbaar
Voor meer informatie kunt u contact met ons opnemen.
Bel
ons op 050-3113110 voor direct contact.





























































