€ 385.000 k.k.
Koninginnelaan 53 c Groningen
Plan een bezichtiging
T 050-3113110
E info@slimmakelaardij.nl
Woningtype
Appartement
Woonoppervlakte
154 m2
Aantal kamers
5 kamers / 4 slaapkamers
Omschrijving
Royale sfeervolle bovenwoning uit 1920 van ca. 154m² met voor en achter vrij uitzicht in de geliefde Oranjewijk! Deze ruime bovenwoning heeft energielabel B, grotendeels HR++ beglazing en kunststof kozijnen. Bovendien is er aan ruimte geen gebrek met de vier slaapkamers die aanwezig zijn. Als kers op de taart zijn o.a. het Noorderplantsoen, supermarkt en gezellige eetgelegenheden letterlijk op loopafsand. Ook het bruisende stadscentrum, UMCG en Zernike zijn dichtbij.Indeling:
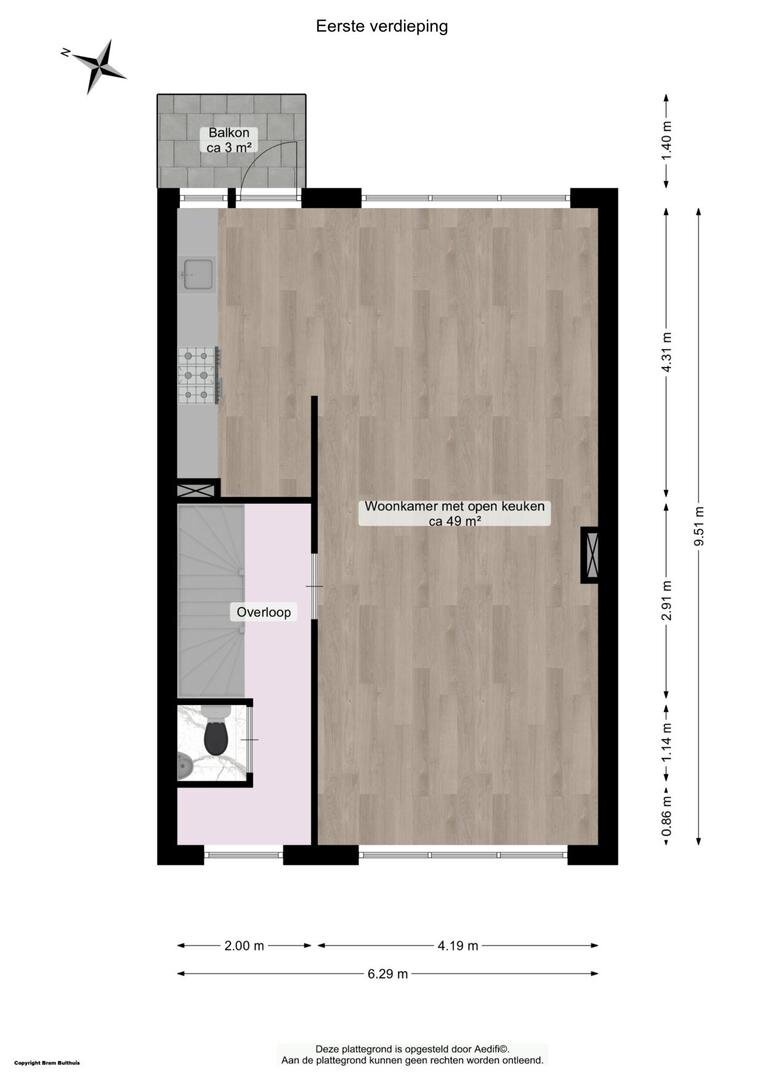
Begane grond: ruime eigen entree van ca. 8m² met meterkast en genoeg plek voor opbergruimte en het stallen van fietsen.Eerste verdieping: via de overloop zijn het toilet, de garderobe en de royale woonkamer van ca. 49m² bereikbaar. Door de vele raampartijen is er veel lichtinval in de woning. Daarnaast is het vrije uitzicht tegenover prachtig dankzij de hoge ligging. De moderne keuken is voorzien van de benodigde apparatuur: groot gasfornuis met oven, afzuigkap en vaatwasser. Bovendien is hier de toegang tot het balkon aan de achterzijde.Tweede verdieping: de overloop heeft een centrale ligging van waaruit alle vertrekken bereikbaar zijn. De slaapkamers aan de achterzijde zijn ca. 9m² en 18m². De moderne badkamer van ca. 6m² is voorzien van een douche, bad, toilet, wastafel en witgoedaansluiting. De slaapkamer aan de voorzijde is ca. 13m².Derde verdieping: de royale zolder van ca. 22m² heeft veel lichtinval door de raampartijen. Hier bevindt zich de vierde slaapkamer/werkkamer. De balken geven veel sfeer aan deze ruimte. Ook is hier een berging met de CV-ketel en witgoedaansluiting.De stenen fietsenberging buiten van ca. 4m² bevindt zich aan de achterzijde van het pand en is bereikbaar via een afgesloten brandgang.* Royale sfeervolle bovenwoning van ca. 154m²
* Vrij uitzicht op onder andere het Noorderplantsoen
* Karakteristiek pand
* Energielabel B
* Dakisolatie, kunststof kozijnen en grotendeels HR++ beglazing (Veluxramen op zolder HR beglazing)
* Goed onderhouden, instap klaar
* Actieve en gezonde VvE, maandelijkse bijdrage €186,-
* Ideale locatie: dicht bij het Noorderplantsoen, verschillende eetcafés, het stadscentrum, UMCG en Zernike.
Kenmerken
| Type | Appartement |
|---|---|
| Hoofdfunctie | Woonruimte |
| Bouwvorm | bestaande bouw |
| Woonoppervlakte | 154 m² |
| Energielabel | B |
| Bouwperiode | 1920 |
Refresh to make it work.
Helaas..
Dit object is niet meer beschikbaar
Voor meer informatie kunt u contact met ons opnemen.
Bel
ons op 050-3113110 voor direct contact.






























































