€ 400.000 k.k.
Meerpaal 370 Groningen
Plan een bezichtiging
T 050-3113110
E info@slimmakelaardij.nl
Woningtype
Woonhuis
Woonoppervlakte
150 m2
Aantal kamers
7 kamers / 6 slaapkamers
Omschrijving
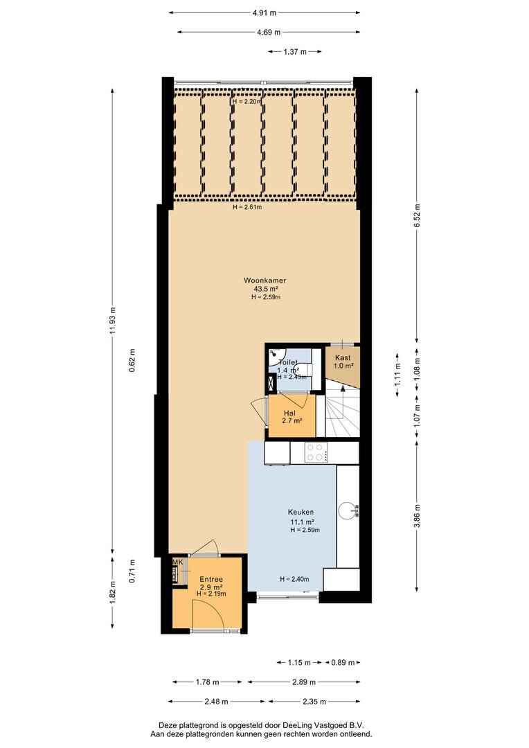
Ruimte, comfort én duurzaamheid komen hier perfect samen! Deze verrassend ruime en uitgebouwde tussenwoning is werkelijk een droom voor grote gezinnen of thuiswerkers. Dankzij zowel een royale uitbouw als een dakopbouw beschikt deze woning niet alleen over een heerlijke, lichte woonkamer, maar ook over maar liefst 6 slaapkamers en 2 badkamers. Hier heeft iedereen zijn eigen plek! De woning is volledig voorzien van kunststof kozijnen met HR++ glas en uitstekende isolatie. Dat betekent niet alleen optimaal wooncomfort, maar ook een duurzaam thuis met energielabel A. Voeg daar de zonnige, royale tuin op het zuiden aan toe en je hebt een woning die álles biedt wat je zoekt.De ligging maakt het plaatje compleet. In de groene en kindvriendelijke wijk Lewenborg woon je tussen plantsoenen en speelplekken, met een uitgebreid winkelcentrum, scholen en diverse voorzieningen binnen handbereik. Sportcentrum Kardinge bereik je lopend en ook het bruisende stadscentrum ligt op korte afstand. Hier woon je rustig én centraal!indeling:Begane grond : Via de entree kom je in de hal met toegang tot de open keuken. De keuken in hoekopstelling is voorzien van diverse inbouwapparatuur, waaronder een vaatwasser, koelkast, oven en inductie kookplaat. De schuifpui naar de voortuin zorgt voor extra licht en een fijne verbinding met buiten. De uitgebouwde woonkamer met royale serre en grote schuifpui naar de zonnige achtertuin is ideaal. Binnen en buiten lopen hier naadloos in elkaar over. Dankzij de enorme lichtinval en de fraaie houten vloer is dit een heerlijke leefruimte van maar liefst ca. 55 m² (woonkamer en keuken samen). Daarnaast is er een praktische provisiekast onder de trap en bevindt zich in de tussenhal het toilet.Eerste verdieping: Hier bevinden zich drie comfortabele slaapkamers van circa 14 m², 10 m² en 6 m². De complete badkamer van ca 7m² is uitgerust met een ligbad, douche, wastafel en tweede toilet. Ook is er een praktische wasruimte aanwezig, ideaal voor een georganiseerd huishouden.
Tweede verdieping: In 2024 is middels een dakopbouw nog eens flink uitgebreid. Hier zijn drie extra slaapkamers én een tweede badkamer gerealiseerd. Aan de achterzijde bevinden zich twee slaapkamers van ca. 9 m² en 5 m², waarbij de grootste toegang geeft tot een balkon aan de achterzijde. Aan de voorzijde ligt een ruime slaapkamer van ca. 12 m² met een stijlvolle badkamer en suite, voorzien van een inloopdouche, wastafel en toilet. Ook deze kamer heeft toegang tot een tweede balkon. Een fantastische verdieping met volop mogelijkheden!De zonnige achtertuin op het zuiden is de perfecte plek om te ontspannen of gezellig te borrelen met vrienden en familie. Dankzij de grote schuifpui wordt het buitenleven echt onderdeel van je woonruimte. Aan de voorzijde bevindt zich nog een voortuin met praktische fietsenberging.* Energielabel A
* Volledig voorzien van kunststof kozijnen met HR++ glas
* Maar liefst 6 slaapkamers
* 2 badkamers
* Uitbouw én dakopbouw (2024)
* Zonnige tuin op het zuiden
Kenmerken
| Type | Woonhuis |
|---|---|
| Hoofdfunctie | Woonruimte |
| Bouwvorm | bestaande bouw |
| Woonoppervlakte | 150 m² |
| Energielabel | A |
| Bouwperiode | 1972 |
Refresh to make it work.
Helaas..
Dit object is niet meer beschikbaar
Voor meer informatie kunt u contact met ons opnemen.
Bel
ons op 050-3113110 voor direct contact.

































































