€ 325.000 k.k.
Jacob van Hattumstraat 7 Groningen
Plan een bezichtiging
T 050-3113110
E info@slimmakelaardij.nl
Woningtype
Woonhuis
Woonoppervlakte
87 m2
Aantal kamers
3 kamers / 2 slaapkamers
Omschrijving
Weg van de drukte van de stad, maar toch lekker dichtbij ligt deze duurzame eengezinswoning in de wijk De Held. De woning is gelegen op een schitterende plek met veel groen waar menig natuurliefhebber zijn hart kan ophalen. Zodra je binnenstapt voel je je meteen thuis en de heerlijke lichte woonkamer kijkt uit op de diepe achtertuin. De woning heeft twee slaapkamers (momenteel zijn er 2 samengevoegd maar het is eenvoudig deze in originele staat terug te brengen). De woning is gelegen vlakbij het 'Roege Bos' en in de wijk zijn vele voorzieningen aanwezig zoals scholen, recreatiemogelijkheden en een winkelcentrum in de directe omgeving. Het is circa 20 minuten fietsen naar het stadscentrum. Parkeergelegenheid is er volop en direct voor de deur.Indeling
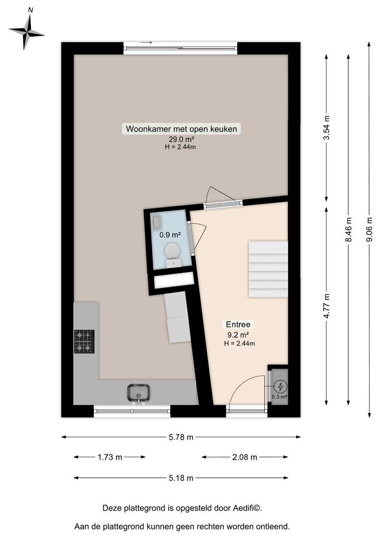
Begane grond: entree/hal met meterkast, toilet met fonteintje en trapopgang naar de verdieping. De woonkamer met open keuken van ca 29m² is heerlijk licht en heeft een schuifpui richting de tuin. De hoekkeuken bevindt zich aan de voorzijde van de woning. De keuken is voorzien van diverse inbouwapparatuur te weten: een koelvriescombinatie, oven, 4-pits gasfornuis, afzuigkap en vaatwasser.Eerste verdieping: op deze verdieping zijn de twee ruime slaapkamers van ca. 14m² en 18m² te vinden. De slaapkamer aan de achterzijde is eenvoudig op te splitsen in twee kamers. De moderne badkamer van ca 4m² is voorzien van; een ruime inloopdouche, wastafel en tweede toilet. In de badkamer is de aansluiting voor het witgoed te vinden.De diepe achtertuin is gelegen op het noorden, en via de achterom te bereiken. Hier vinden we nog een aparte berging van ca 6,4 m²
* rustig wonen in een kindvriendelijke omgeving
* parkeergelegenheid voor de deur
* rustige woonomgeving op fietsafstand van de binnenstad
* eigen berging in de achtertuin
* voorzien van 6 zonnepanelen
* energielabel A
* niet zelf bewoond clausule van toepassing
Kenmerken
| Type | Woonhuis |
|---|---|
| Hoofdfunctie | Woonruimte |
| Bouwvorm | bestaande bouw |
| Woonoppervlakte | 87 m² |
| Energielabel | A |
| Bouwperiode | 1996 |
Refresh to make it work.
Helaas..
Dit object is niet meer beschikbaar
Voor meer informatie kunt u contact met ons opnemen.
Bel
ons op 050-3113110 voor direct contact.













































